The Morris Cottage

Cross Village, Michigan

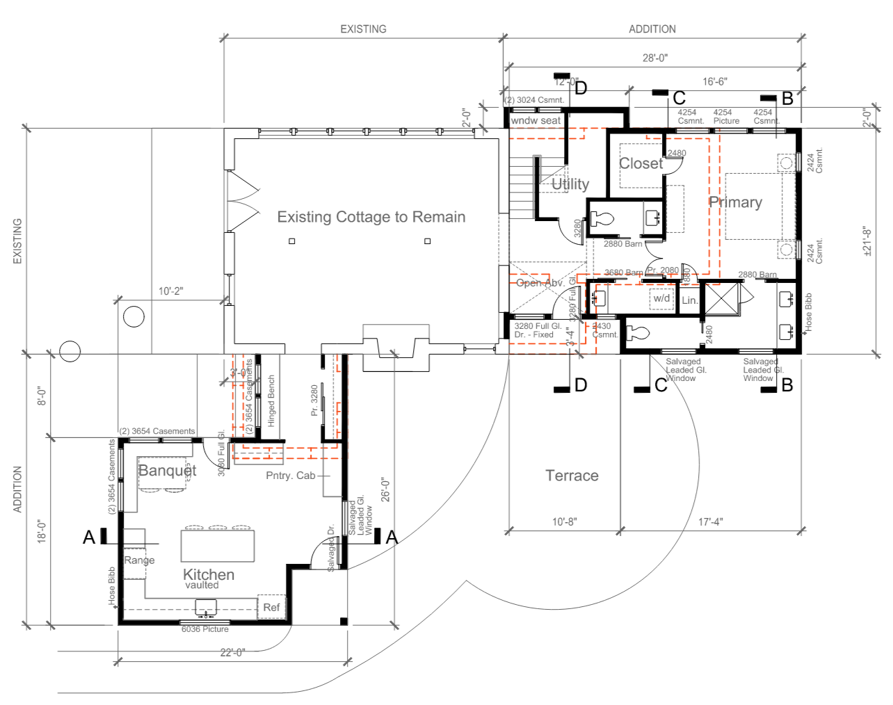
  • I was engaged by our Sarasota neighbor to design an expansion and renovation of his 1940s family cottage overlooking Lake Michigan.​

  • The expansion included a new eat-in kitchen, primary suite, and a new stair leading to the expanded loft level with guest accommodations and bath.​

    The construction was completed in late 2025. Final photos are planned after the Michigan Spring thaw.​