910 Gillespie Avenue

Sarasota, FL

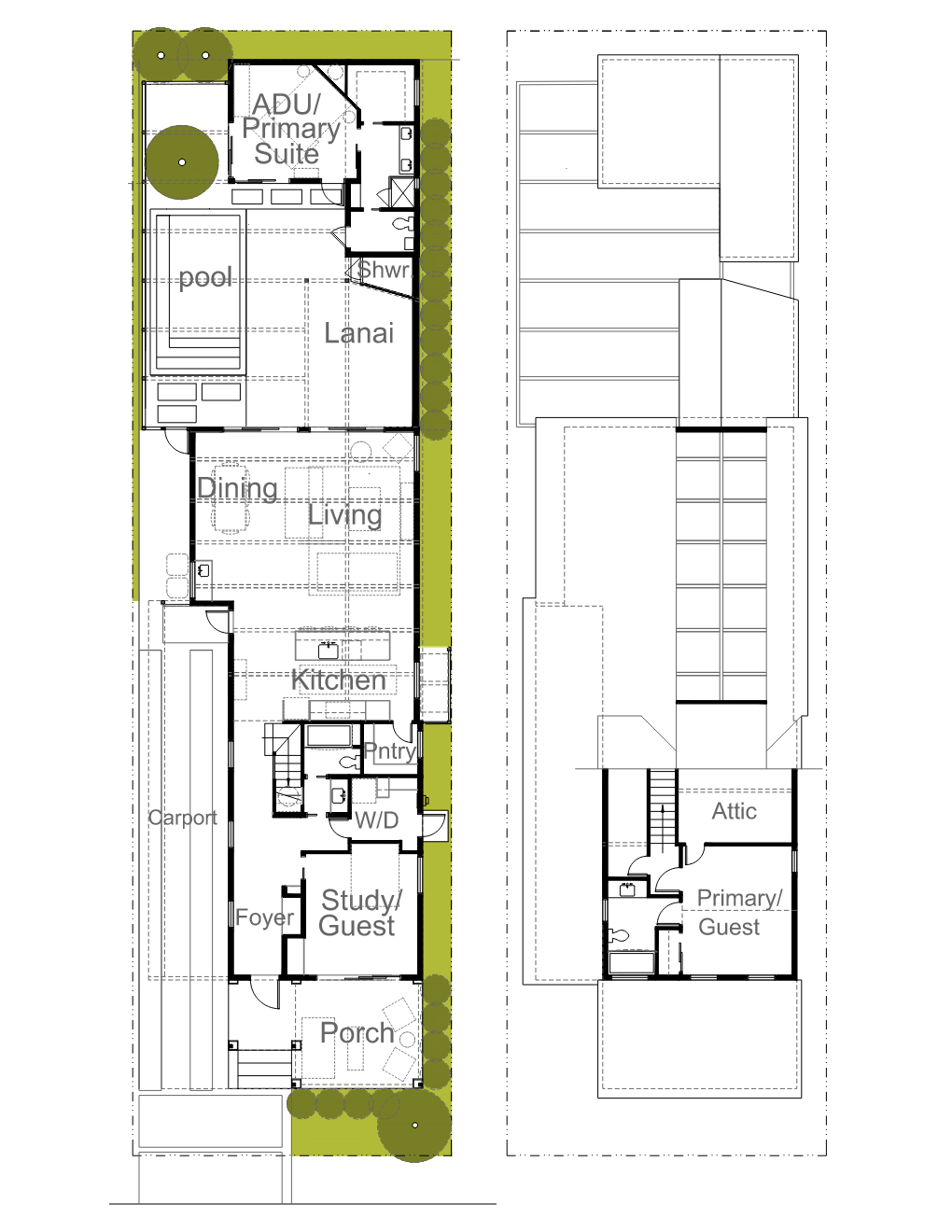
  • Designed as a potential speculative house development on a vacant lot adjacent to our own home, the construction is stalled until the property can be purchased.​

  • The three bed / 2.5 bath plan is organized to take advantage of the Gillespie Park views at the front and a screened lanai / pool area at the back. Dual primary suites are planned with one located in an ADU. The house is planned to have a “modern farmhouse” appearance with a large front porch with retractable insect screens to provide an outdoor living area overlooking the park.